・広さ:70㎡
・定員:1~4名様用
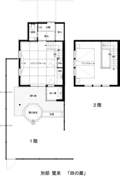
・蔵を移築して作られた離れ客室です。
・移動は屋外の小道を歩いていただきます。
・屋根裏2階がありメゾネットタイプになります。
・2階にツインベッド(ベッドサイズ:140㎝×200㎝)
(ダブルベッドタイプでご用意させていただくことも可能です。)
(3名以上は1階にお布団を敷かせていただきます。)
・禁煙
・インターネット接続可能。無線LAN(無料)
・冷蔵庫
・アメニティセット
・浴衣
・バスローブ
・フェイスタオル、バスタオル(足らない場合はお申し付けください。
田の蔵TANOKURA
都会の喧騒を忘れ、ゆっくりできる別棟
お部屋
温泉
・源泉かけ流し
・洗い場もございます。
・足湯もご用意しております。足湯でのひと時もお楽しみください。
・大浴場・貸切風呂をご利用の際は、本館へご移動ください。
庭園
・風に揺れる木々と苔の緩やかな庭と山々の借景をお楽しみください。
・夜のライトアップも楽しみの一つです。
・路地庭の四季の草花もお楽しみください。
お食事
【夕食】【朝食】
・築110年の古民家の母屋でご用意させていただきます。
古来の匠たちの粋をお楽しみいただけます。







